TG RERA Registration No. P01100003044
Website: rera.telangana.gov.in
Budget
Rs.6999 per sft
₹24,84,645
Minimum
Status
Mid Stage Construction
Possession
2026
Janapriya Engineers Syndicate
4 Acres of project area
Building details coming soon
670 Units
Units details coming soon
P01100003044
This project is RERA approved
Floor to floor height
9.5 ft
More height means more space
Configurations
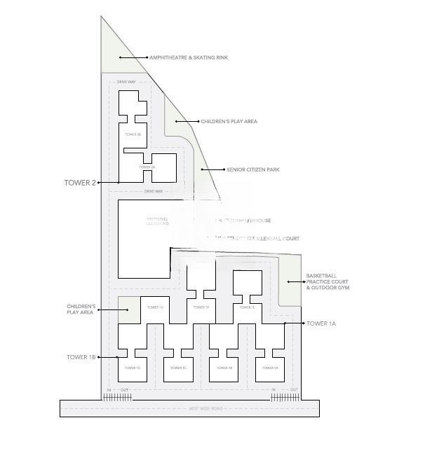
What This Place Offers
Gym
Swimming Pool
Tennis Court
Cricket Pitch
Kids Play Area
Basketball Court
Volleyball Court
Yoga & Meditation
Jogging/Cycle Track
Table Tennis
Where You'll Be
What Is Nearby
Project Specifications
Plastering & Walls
Acrylic Emulsion
Flooring - Bedroom
Vitrified Tiles
Flooring - Bedroom
Vitrified Tiles
Plastering & Walls
Acrylic Emulsion
Price History
As per builder
35% Increase
Since last update
Projects by Janapriya Engineers Syndicate
View allDisclaimer: The material and information contained herein is for general informational purposes only, and does not constitute an endorsement/warranty/representation/offer from BuySft.
Sources of Information: Project details presented on this page are collected from public sources including State RERA websites (wherever applicable), project websites created by builder and authorized channel partners and official documentation shared by these authorized advertisers (project brochure, price list, payment plans). BuySft only presents this content in easy format for user research and user education and does not own any content. Users are advised to exercise caution and validate facts from builder / promoter before purchase.




