Om Sree Brilliance
Sainikpuri Hyderabad, Medchal-Malkajgiri, Alwal, YAPRAL VILLAGE ROAD, 500087
TG RERA Registration No. P02200002235
Website: rera.telangana.gov.in
Budget
Rs.6700 per sft
₹1,42,71,000
Minimum
Status
Ready to Move
Possession
2024
Om Sree Builders & Developers Llp
3 Acres of project area
G+11 Floors 5 Towers
200 Units
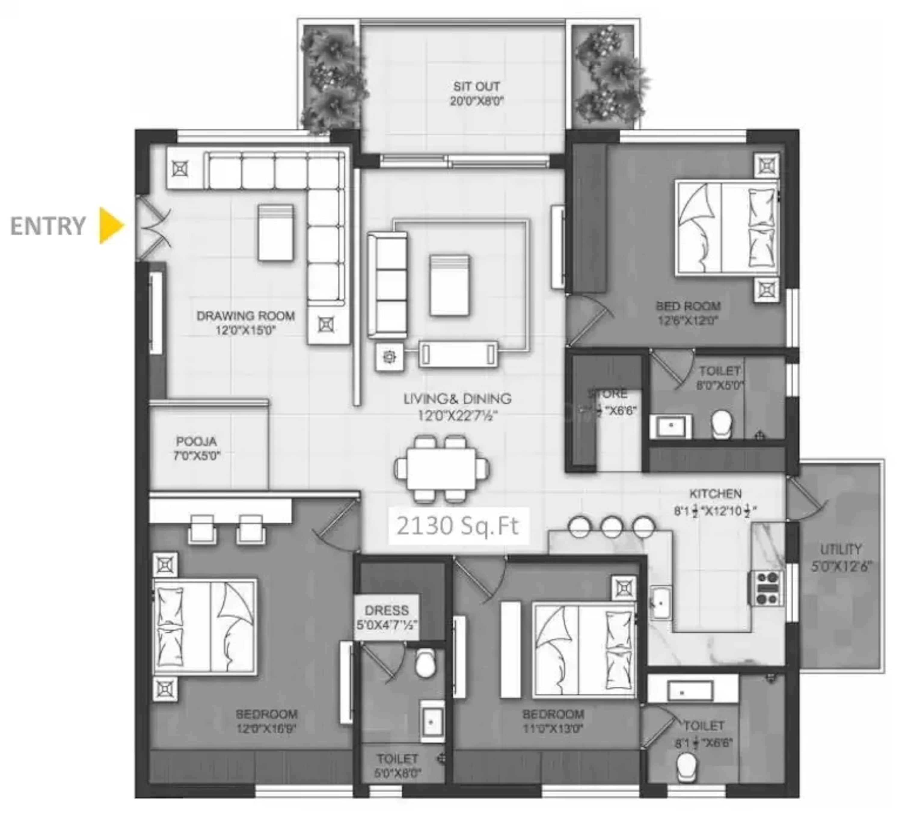
211 units - 3 BHK in 5 towers
P02200002235
This project is RERA approved
Floor to floor height
9.8 ft
More height means more space
Configurations
What This Place Offers
Gym
Swimming Pool
Badminton Court
Tennis Court
Squash Court
Kids Play Area
Basketball Court
Yoga & Meditation
Jogging/Cycle Track
Power Backup
Where You'll Be
What Is Nearby
Project Specifications
Flooring - Bedroom
Vitrified Tiles
Flooring - Bedroom
Vitrified Tiles
Flooring - Living Area
Vitrified Tiles
Bathrooms & Sanitary
Premium Bath Fittings
Projects by Om Sree Builders & Developers Llp
View allDisclaimer: The material and information contained herein is for general informational purposes only, and does not constitute an endorsement/warranty/representation/offer from BuySft.
Sources of Information: Project details presented on this page are collected from public sources including State RERA websites (wherever applicable), project websites created by builder and authorized channel partners and official documentation shared by these authorized advertisers (project brochure, price list, payment plans). BuySft only presents this content in easy format for user research and user education and does not own any content. Users are advised to exercise caution and validate facts from builder / promoter before purchase.




