Makuta Nirvana
Opposite to GMR Convention PATANCHERU A, Sangareddy, PATANCHERUVU, PATANCHERUVU, 502319
TG RERA Registration No. P01100007273
Website: rera.telangana.gov.in
Budget
Rs.5250 per sft
₹73,67,500
Minimum
Status
New Launch
Possession
2028
Makuta Developers
6.98 Acres of project area
Building details coming soon
948 Units
Units details coming soon
P01100007273
This project is RERA approved
Floor to floor height
9.7 ft
More height means more space
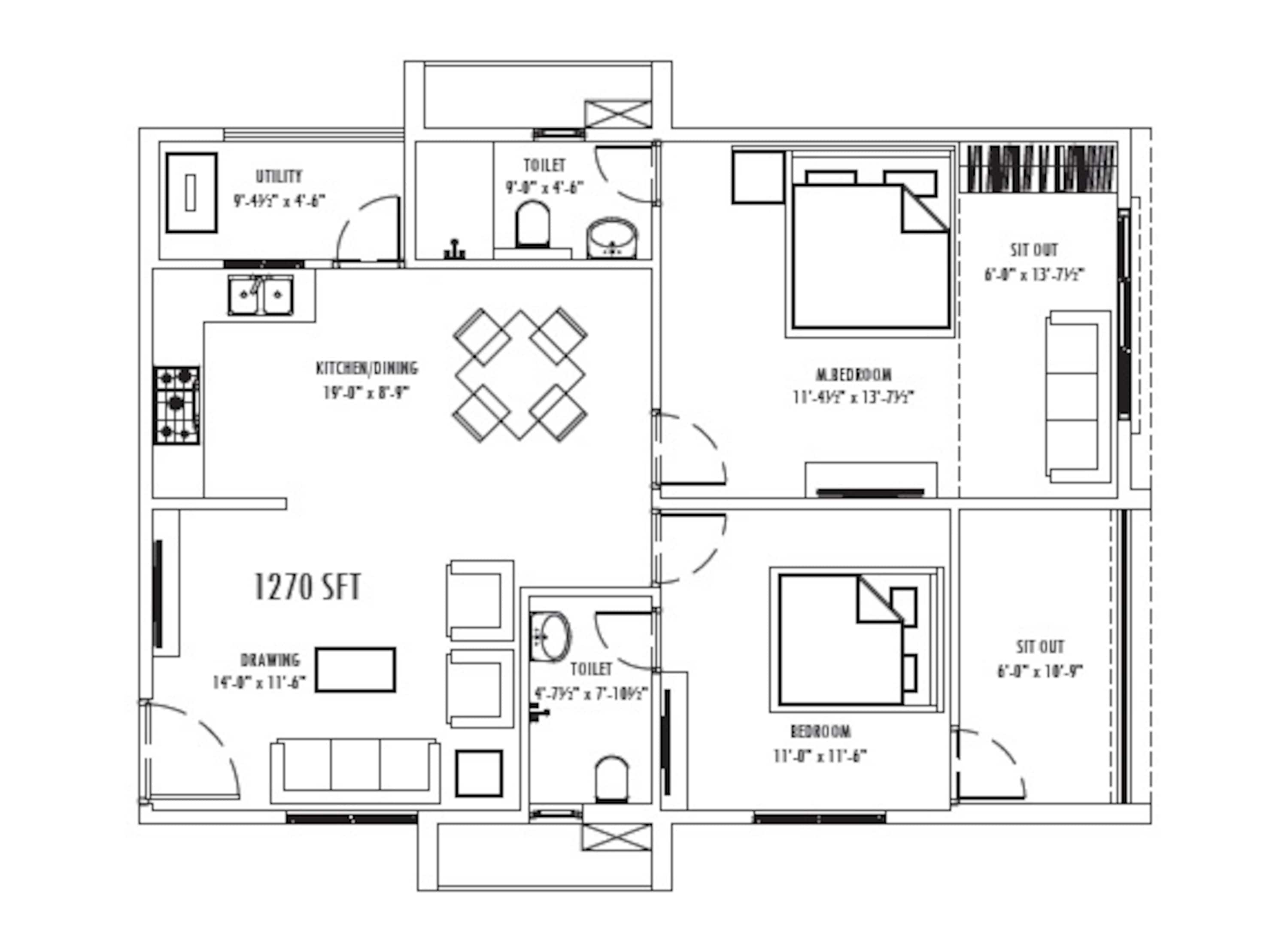
Configurations
What This Place Offers
Pickleball Court
Climbing Wall
Badminton Court
Squash Court
Football Court
Cycling Track
Skating Rink
Cricket Pitch
Tennis Court
Basketball Court
Where You'll Be
What Is Nearby
Project Specifications
Structure & Civil Works
R.C.C frame structure to withstand wind and seismic loads with Solid/AAC Blocks external wall 8”/9”, corridors 6”, internal walls 4”
Plastering & Walls
Solid/AAC Blocks external wall 8”/9” with double coat cement plaster with trowel finish with weather proof paints of Asian or equivalent make
Plastering & Walls
Solid/AAC Blocks internal walls 4” with smooth plastered surface treated with putty and painted with emulsion paint of Asian or equivalent make
Plastering & Walls
Smooth plastered surface treated with putty on internal walls
Projects by Makuta Developers
View allDisclaimer: The material and information contained herein is for general informational purposes only, and does not constitute an endorsement/warranty/representation/offer from BuySft.
Sources of Information: Project details presented on this page are collected from public sources including State RERA websites (wherever applicable), project websites created by builder and authorized channel partners and official documentation shared by these authorized advertisers (project brochure, price list, payment plans). BuySft only presents this content in easy format for user research and user education and does not own any content. Users are advised to exercise caution and validate facts from builder / promoter before purchase.


