INDIS PBEL City
Peeranchuruvu Hyderabad, Ranga Reddy, Gandipet, GANDIPET, 500091
TG RERA Registration No. P02400003490
Website: rera.telangana.gov.in
Budget
Rs.5500 per sft
₹70,51,000
Minimum
Status
Partially Ready To Move
Possession
2026
Indis Group Incor
25 Acres of project area
G+19 Floors 1 Tower
2500 Units
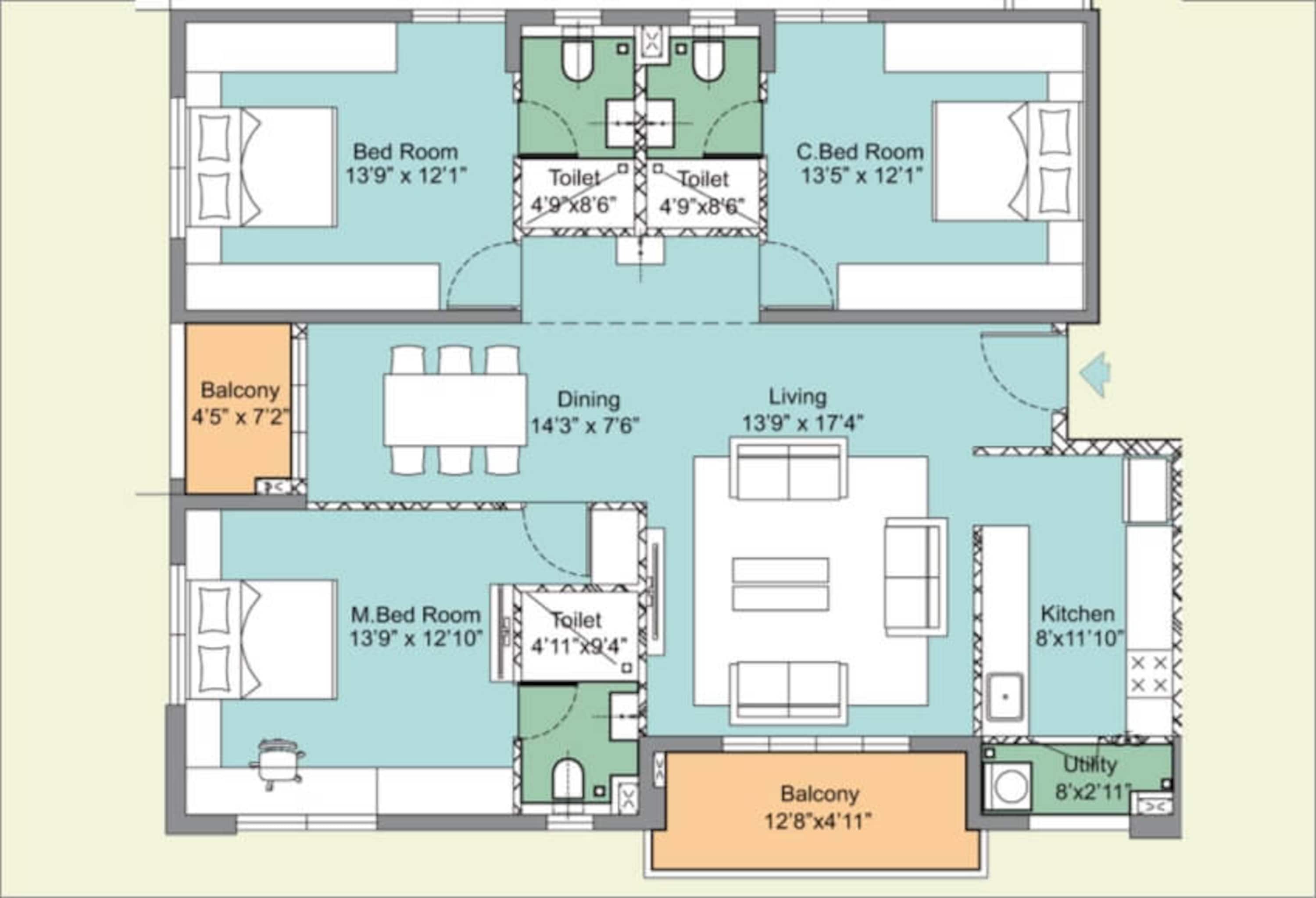
77 units - 2 BHK, 119 units - 3 BHK in 1 tower
P02400003490
This project is RERA approved
Floor to floor height
9.7 ft
More height means more space
Configurations
What This Place Offers
Sports Arena
Swimming Pool
Kids Pool
Yoga & Aerobics
Gym
Badminton Court
Squash Court
Skating Rink
Basketball Court
Tennis Court
Where You'll Be
What Is Nearby
Project Specifications
Structure & Civil Works
Framed RCC shear walls that are resistant to wind and earthquake Zone – 2
Plastering & Walls
Internal walls and ceiling painted with acrylic emulsion of approved color or equivalent
Plastering & Walls
Weather proof exterior grade paint of approved color or texture or equivalent
Flooring - Living Area
Vitrified tiles flooring in Drawing Living Dining of RAK Make or equivalent
Projects by Indis Group Incor
View allDisclaimer: The material and information contained herein is for general informational purposes only, and does not constitute an endorsement/warranty/representation/offer from BuySft.
Sources of Information: Project details presented on this page are collected from public sources including State RERA websites (wherever applicable), project websites created by builder and authorized channel partners and official documentation shared by these authorized advertisers (project brochure, price list, payment plans). BuySft only presents this content in easy format for user research and user education and does not own any content. Users are advised to exercise caution and validate facts from builder / promoter before purchase.




