TG RERA Registration No. P02500008750
Website: rera.telangana.gov.in
Budget
Rs.6000 per sft
₹69,00,000
Minimum
Status
Mid Stage Construction
Possession
2030
CSK Realtors Limited
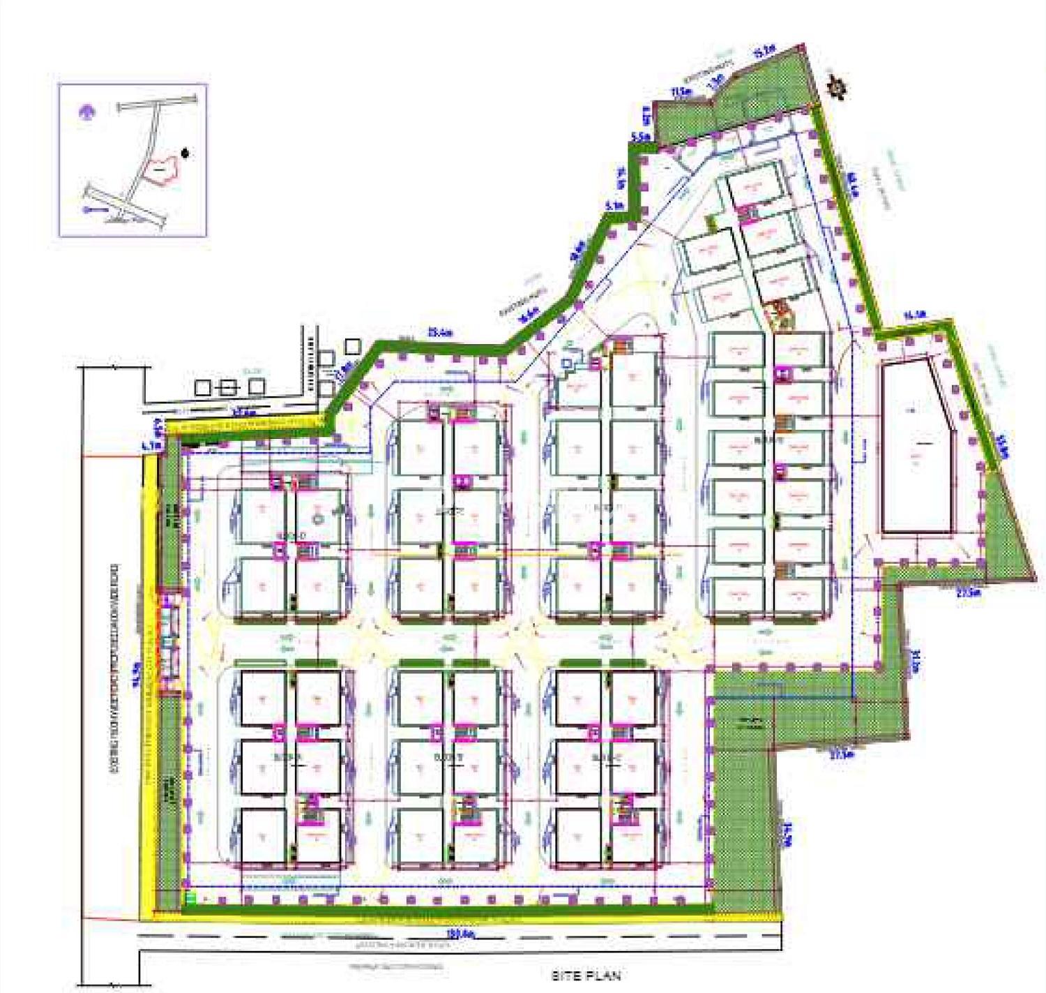
5.03 Acres of project area
Building details coming soon
726 Units
Units details coming soon
P02500008750
This project is RERA approved
Floor to floor height
9.8 ft
More height means more space
Configurations
What This Place Offers
Yoga & Aerobics
Gym
Indoor Games
Multipurpose Hall
Squash Court
Badminton Court
Cricket Nets
Tennis Court
Swimming Pool
Jogging/Walking Track
Where You'll Be
What Is Nearby
Project Specifications
Fire & Safety
Firefighting equipment’s as per standard Government norms for high rise buildings
Plumbing & Water Supply
PVC sanitary piping CPVC UPVC Drinking water supply directly to Kitchen daily use water in kitchen toilets utility etc
Power Backup
Emergency power supply for common areas and services Connection for one fan point and one light point in all bedrooms drawing dining
Elevators / Lifts
Two no’s of high speed automatic ten passenger lifts and one16 passengers lift with ARD rescue device with V3F for energy efficiency
Disclaimer: The material and information contained herein is for general informational purposes only, and does not constitute an endorsement/warranty/representation/offer from BuySft.
Sources of Information: Project details presented on this page are collected from public sources including State RERA websites (wherever applicable), project websites created by builder and authorized channel partners and official documentation shared by these authorized advertisers (project brochure, price list, payment plans). BuySft only presents this content in easy format for user research and user education and does not own any content. Users are advised to exercise caution and validate facts from builder / promoter before purchase.
