Ambience Courtyard
Manikonda Hyderabad, Ranga Reddy, Rajendranagar, Rockdale gardens, 500089
TG RERA Registration No. P02400001919
Website: rera.telangana.gov.in
Budget
Rs.9999 per sft
₹1,03,21,520
Minimum
Status
Ready to Move
Possession
2024
Koncept Ambience Group Pvt Ltd
8 Acres of project area
Building details coming soon
746 Units
Units details coming soon
P02400001919
This project is RERA approved
Floor to floor height
10.0 ft
More height means more space
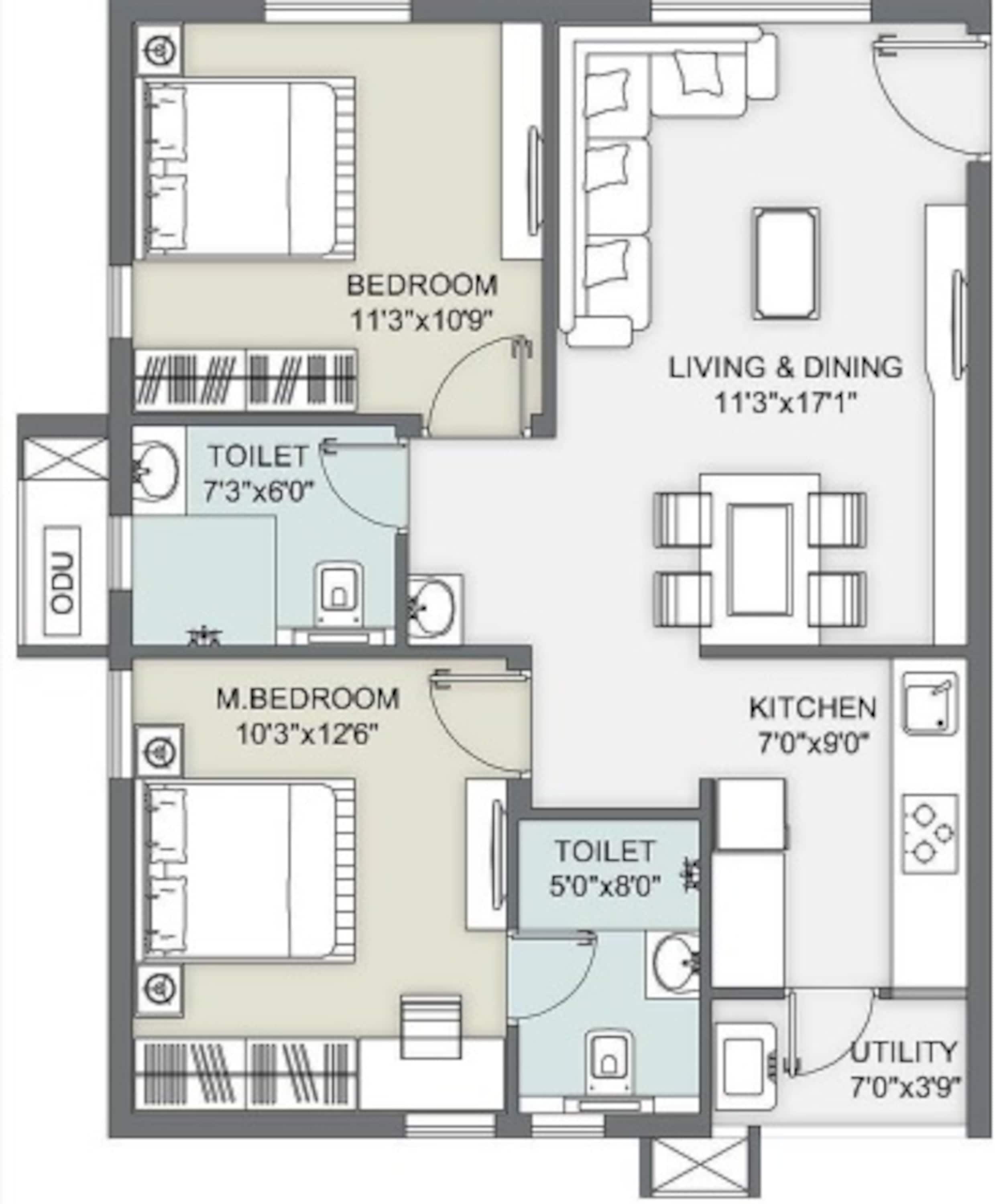
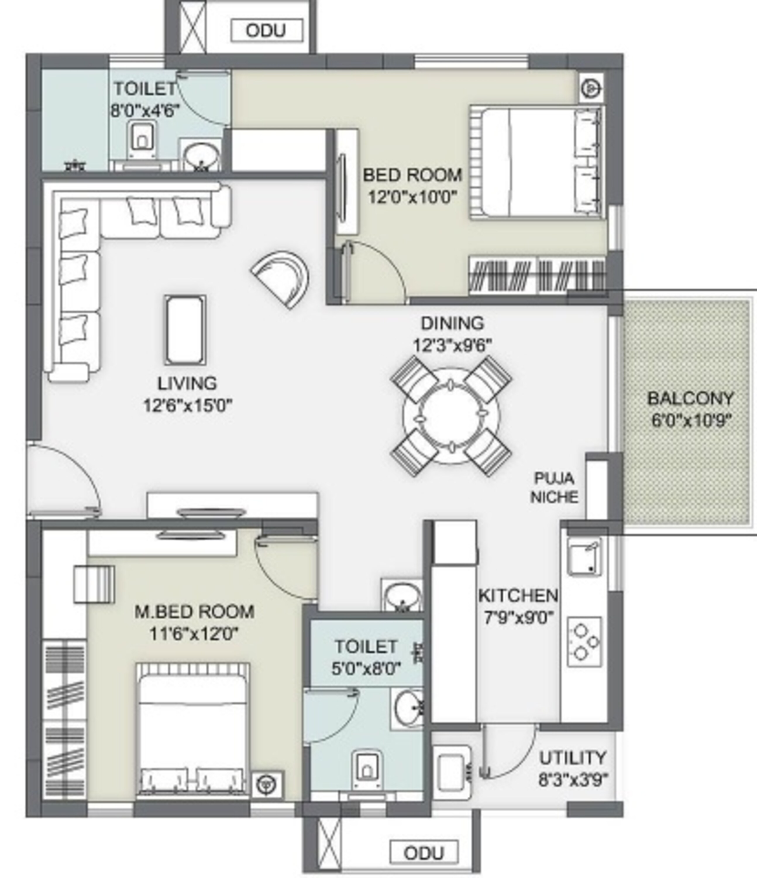
Configurations
What This Place Offers
Gym
Swimming Pool
Squash Court
Cricket Pitch
Kids Play Area
Basketball Court
Yoga & Meditation
Jogging/Cycle Track
Skating Rink
Gazebo
Where You'll Be
What Is Nearby
Project Specifications
Structure & Civil Works
Residential community spread across 8 acres with multiple blocks and apartment towers
Landscaping & Parks
67% open spaces within the project with significant green cover
Clubhouse & Amenities
Clubhouse with multiple facilities and indoor recreational amenities
Gym & Fitness
Gymnasium and aerobics facilities available within the community
Price History
As per builder
16% Increase
Since last update
Projects by Koncept Ambience Group Pvt Ltd
View allDisclaimer: The material and information contained herein is for general informational purposes only, and does not constitute an endorsement/warranty/representation/offer from BuySft.
Sources of Information: Project details presented on this page are collected from public sources including State RERA websites (wherever applicable), project websites created by builder and authorized channel partners and official documentation shared by these authorized advertisers (project brochure, price list, payment plans). BuySft only presents this content in easy format for user research and user education and does not own any content. Users are advised to exercise caution and validate facts from builder / promoter before purchase.



